Location
Situated in the popular town of Normanton, this home enjoys excellent local amenities, highly rated schools and convenient transport links. The town centre, train station and M62 motorway are all close by, providing easy access to Leeds, Wakefield and surrounding areas.
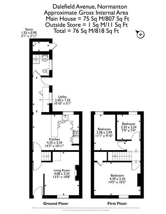
Exterior
Front
Low maintenance, consisting of a patio area, and decorative floral borders. Parking to the front and side of the property.
Rear
Low maintenance with a small outbuilding and space for a medium size shed for storage. Patio, decorative floral borders and new fencing.
Interior – Ground Floor
Hallway
Bright and open, with space for shoe and coat storage.
Living room
The lovely space which can accommodate a selection of furniture layouts Central Heated radiator, Double Glazed windows to the front aspect.
Dining/Kitchen
A spacious and modern kitchen installation, which benefits from quality flooring and space for dining. Plenty of storage capacity and a 1l capacity sink and drainer with splash-back tiling. Supported freestanding appliances include, a range cooker, with five gas hobs, including a fitted extractor fan above, unit space for a microwave etc, and a plumbed-in fridge freezer. Central Heated radiator, Double Glazed windows to the rear aspect.
Utility
Storage and counter space. Supported appliances include: a free-standing washing machine and a tumble dryer. Double Glazed window to the side aspect and a uPVC exterior door, with ‘frosted’ Double Glazing.
Shower Room
Features include: wall and floor tiling, a w/c, a wash basin with fitted storage units underneath a vanity unit, and a shower cubicle with an overhead shower fixture. Central Heated radiator and Double Glazed ‘frosted’ windows to the side elevation.
Interior – First Floor
Bedroom One
Very spacious and comfortably large enough for a King-size bed and associated furniture. The room also enjoys a built-in storage closet. Central Heated radiator and Double Glazed windows to the front elevation.
Bedroom Two
Large enough for a three-quarter size bed and additional storage furniture. Central Heated radiator and Double Glazed windows to the rear elevation.
Bedroom Three
Large enough for a single bedroom. Ideal for use as a home office, reading room, gaming room, or nursery. Central Heated radiator and Double Glazed windows to the rear elevation.
Disclaimer
Every attempt has been made to ensure accuracy, however these property particulars are approximate and for illustrative purposes only. They have been prepared in good faith and they are not intended to constitute part of an offer of contract. We have not carried out a structural survey and the services, appliances and specific fittings have not been tested. All photographs, measurements, floor plans and distances referred to are given as a guide only and should not be relied upon for the purchase of any fixture or fittings. Lease details, service charges and ground rent (where applicable) are given as a guide only and should be checked prior to agreeing a sale. Where a property has a loft conversion and we have not been able to identify that building regulations were signed off, the room will be identified as a 'loft room' rather than a bedroom. AI Generated furnishings may have been applied to some images on some listing where the property is vacant and is for illustrative purposes only.



Our online booking service for valuations is down today.
Please email us directly at info@rosedaleandjones.co.uk or call us on 01924 792796 if you would like to book a valuation.
