LOCATION
Nestled in the heart of Headingley, Maryland House, 5 Grosvenor Road offers an enviable location that perfectly balances vibrant city living with a relaxed, community feel. Just a short stroll from Headingley's lively high street, residents can enjoy a wide selection of independent cafes, restaurants, and bars, along with essential amenities and excellent public transport links into Leeds city centre. The area is especially popular with young professionals and working couples thanks to its blend of convenience and character. With local green spaces such as Beckett Park nearby and quick access to Leeds University and the city’s business hubs, this property is ideally situated for a modern, connected lifestyle. Its location continues to attract consistent rental interest, making it a smart investment opportunity for landlords seeking strong tenant demand in one of Leeds' most sought-after areas.
EXTERIOR
Garden
A well maintained large communal garden and designated private parking.
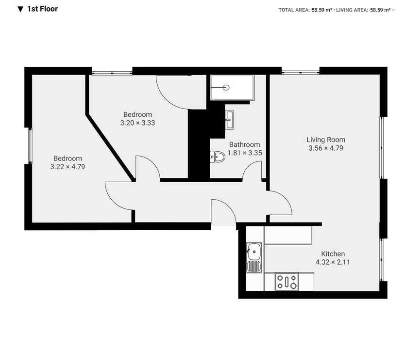
INTERIOR - First Floor
Hallway
The hallway can comfortably support a side unit for added storage or display. It provides access to two bedrooms and the lounge.
Living Room
3.56 m x 4.79 mThis bright and inviting living room offers ample space to accommodate two sofas, coffee tables, a cupboard, and additional furniture. It is fitted with a central heating radiator and features multiple electric outlets.
Kitchen/diner
4.32 m x 2.11 mThe kitchen/diner is well-equipped with a fridge/freezer, five gas hobs with an extractor fan, an oven, microwave, and a dishwasher. Ample cupboards and drawers provide plenty of storage, the dining area by the window comfortably fits a small four-seater table, with a perfect view of the communal garden.
Bedroom One
3.22 m x 4.79 mThis bright room with large windows can easily accommodate a double bed, a large wardrobe, drawers, and additional furniture. It is fitted with a central heating radiator and multiple electric outlets..
Bathroom
1.81 m x 3.35 mThis bathroom features tiled floors and walls. It includes a walk-in shower and a standard basin, complemented by a fitted mirror, cupboard. Also fitted with an electrical port and an extractor fan.
Bedroom Two
3.20 m x 3.33 mA second bright room can comfortably accommodate a double bed along with additional furniture. It can also be easily adapted into a home office.
Disclaimer
Every attempt has been made to ensure accuracy, however these property particulars are approximate and for illustrative purposes only. They have been prepared in good faith and they are not intended to constitute part of an offer of contract. We have not carried out a structural survey and the services, appliances and specific fittings have not been tested. All photographs, measurements, floor plans and distances referred to are given as a guide only and should not be relied upon for the purchase of any fixture or fittings. Lease details, service charges and ground rent (where applicable) are given as a guide only and should be checked prior to agreeing a sale. Where a property has a loft conversion and we have not been able to identify that building regulations were signed off, the room will be identified as a 'loft room' rather than a bedroom. AI Generated furnishings may have been applied to some images on some listing where the property is vacant and is for illustrative purposes only.

Our online booking service for valuations is down today.
Please email us directly at info@rosedaleandjones.co.uk or call us on 01924 792796 if you would like to book a valuation.
