LOCATION
Pawson Street in the sought-after Robin Hood area of Wakefield offers a prime opportunity for investors looking to expand their portfolio in a well-connected and consistently in-demand location. Positioned between Leeds and Wakefield, the area benefits from excellent transport links via the M1 and M62, making it ideal for commuters and boosting rental appeal. The area enjoys a steady rental market supported by local amenities, schools, and green spaces, all of which contribute to strong tenant demand. With continued regional growth and regeneration nearby, Pawson Street represents a smart investment choice with promising long-term returns.
EXTERIOR
The rear garden is paved with stone tiles and offers plenty of space for chairs and a table, making it a great spot for outdoor relaxation or dining.
INTERIOR - Ground floor
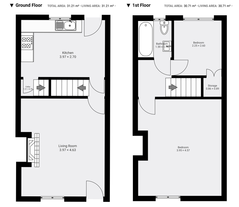
Living Room
3.97 m x 4.63 mThe front door opens directly into a spacious living room, easily accommodating two sofas, coffee tables, and additional furniture. A charming stone fireplace adds character to the room.
Kitchen
3.97 m x 2.70 mModern kitchen countertops and tiled flooring. It is equipped with a fridge freezer, washing machine, oven, four gas hobs, and an extractor fan. Also fitted with plenty of cupboards for ample storage space.
INTERIOR - First floor
Bedroom
3.95 m x 4.57 mThe main bedroom is spacious, with plenty of room for a large double bed, two wardrobes, bedside tables, drawers, and additional furniture. It is also fitted with a central heating radiator for added.
Bedroom/Office
2.25 m x 2.60 mThe smaller bedroom can comfortably fit a single bed, a wardrobe, and some additional furniture. It also includes a built-in storage cupboard and could easily be used as a home office if preferred.
Bathroom
1.59 m x 1.94 mFeatures tiled walls, vinyl flooring and a basin with a mirror above, a bathtub, and a hand towel rail for added convenience.
Cellar
A large cellar provides plenty of extra storage space.
Disclaimer
Every attempt has been made to ensure accuracy, however these property particulars are approximate and for illustrative purposes only. They have been prepared in good faith and they are not intended to constitute part of an offer of contract. We have not carried out a structural survey and the services, appliances and specific fittings have not been tested. All photographs, measurements, floor plans and distances referred to are given as a guide only and should not be relied upon for the purchase of any fixture or fittings. Lease details, service charges and ground rent (where applicable) are given as a guide only and should be checked prior to agreeing a sale. Where a property has a loft conversion and we have not been able to identify that building regulations were signed off, the room will be identified as a 'loft room' rather than a bedroom. AI Generated furnishings may have been applied to some images on some listing where the property is vacant and is for illustrative purposes only.

Our online booking service for valuations is down today.
Please email us directly at info@rosedaleandjones.co.uk or call us on 01924 792796 if you would like to book a valuation.
